Cumming, IA
0.03 Acres M/L
1103 S 44th Street #103
Cumming, IA 50061
| Price | $850,000 |
| Listing | #19132 |
Senior Residential & Land Agent
Kalen Ludwig
Office: 855.800.LAND
Mobile: 515.402.3169
Kalen@PeoplesCompany.com
Residential & Land Agent
Keaton Dreher
Office: 855.800.LAND
Mobile: 515.650.1276
Keaton@PeoplesCompany.com
Property Info
Description
Legal Description
Directions
Covenants
- Sign On Property: Yes
- MLS Number: 734150
- Parcel Number: 42030000010
- School District: Norwalk
- General Area: Cumming
- Net Taxes: $1.00
- Gross Taxes: $1.00
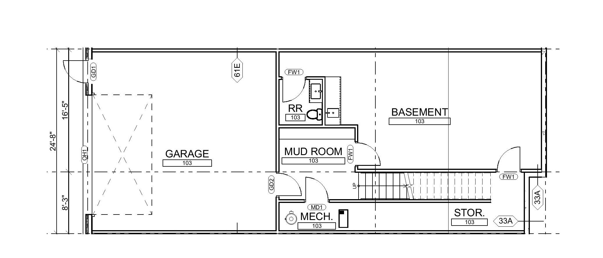
- Style: Three Story
- Lot Size: 1,500 SF
- Lot Dimensions: 24 x 108
- Water: City
- Sewer: City
- Sprinkler: Yes
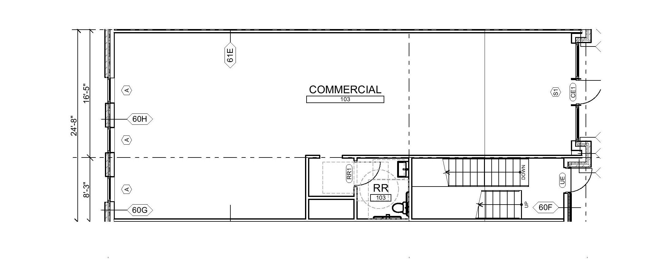
- Building Type: Retail/Condo
- Construction Type: Wood Frame
- Zoning: PUD
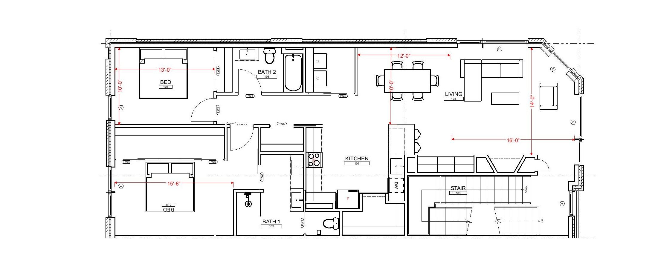
- Bedrooms: 2
- Full Bathrooms: 1
- Half Bathrooms: 1
- Three Quarter Bathrooms: 1
- Garages: 2 Car Attached
- Stories: 3
- Basement: Yes
- Fireplaces: 1
- Year Built: 2026
- Heating: Geothermal
- Living Area Square Feet: 1,450 SF
- Basement Square Feet: 785 SF
- Finished Basement Square Feet: 105 SF
- Roof: Flat TPO
- Exterior: Brick
- Foundation: Poured
Interactive Map
Use the Interactive Map to explore the property's regional location. Zoom in and out to see the property's surroundings and toggle various mapping layers on and off in the Map Layer Menu.
Photos
